AgwA - Chapex
Palais des Expositions - Renovation

AgwA+advvt collaborator

Charleroi, District créatif, Belgium

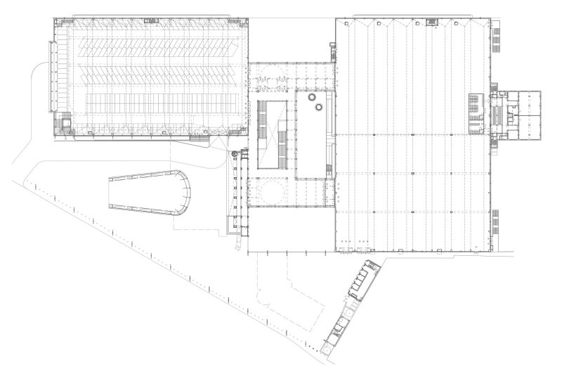
Refurbishment of the Palais des Expositions de Charleroi, exhibition hall of the city of Charleroi, built by Joseph André in 1953. The magnificent central hall, "halls d'honneur", are converted into a distributive park on three levels, organizing the circulation between the exhibition halls and the parking in the former halls. At the same time, the relationship between the city center, the neigbourhood in the valley and the landscape are restored.

Location : Charleroi, Belgium
Client : Charleroi c/o IGRETEC
Surface : 55.000 m2
Budget : +/- 25.000.000 € HTVA
Team : AM AgwA + architecten de vylder vinck taillieu
Subcontractors : Greisch, Doorzon, Denis Dujardin, Daidalos
Planning : 2016-2022
Category : chantier


Pictures by Archives Charleroi, AgwA and Filip Dujardin







Projet


Chantier